大庆k park潮玩馆
大庆k park潮玩馆
📍 黑龙江·大庆
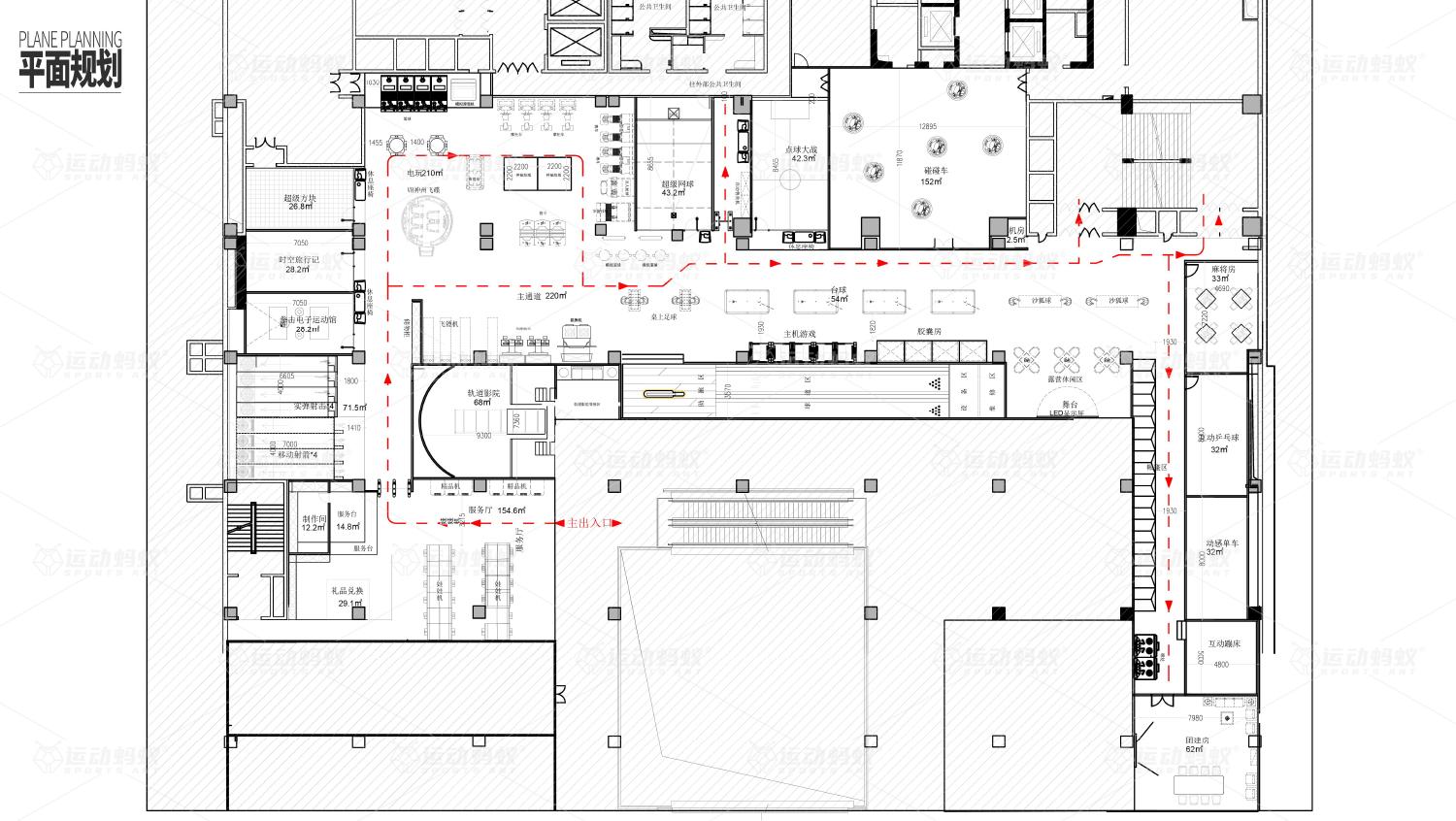
实拍图片
解决方案
中小型商业综合体的一站式解决方案
丰富业态,增强综合竞争力
作为城市商业发展的重要载体,商业综合体需要 不断推出新的业务形式和品牌,以满足日益多元化的 消费者的需求。作为集体育、娱乐、休闲于一体的新型业务, 运动蚂蚁潮汐游馆项目可以为蚂蚁潮汐展馆带来全新的消费体验 商业综合体,吸引更多年轻时尚的消费者前来就诊 消费。 同时,时尚博物馆的独特性和创新性可以 也提升了商业综合体的整体形象和知名度,从而提升了 其综合竞争力。
增强消费粘性,促进商业繁荣
体育蚂蚁潮汐游乐馆提供的体育娱乐项目有 通常具有很强的互动性和体验性,可以吸引消费者留下来和 长时间食用。这种消费粘性不仅可以增加客流 和商业综合体的销售,也带动了商业综合体的繁荣和发展 周围的商店。 此外,博物馆还可以与以下人员进行互动与合作 商业综合体中其他形式的经营,共同创造多元化消费 场景,为消费者提供更多样化的消费选择。
提升商业综合体的文化氛围和品质
体育蚂蚁潮汐游乐馆项目通常侧重于文化建设 氛围和品牌形象,可以带来更多时尚前卫的文化 商业综合体的气氛。 这种文化氛围不仅可以 提高商业综合体的质量和形象,也吸引更多的文化 情侣们前来消费和体验。同时,博物馆还可以举办 丰富多彩的文化活动和事件,进一步丰富文化内涵和 商业综合体的吸引力。
促进商业综合体的可持续发展
作为一种新兴的经营形式,运动蚂蚁潮汐游乐馆项目具有很大的市场 潜力和发展空间。随着消费者对健康需求的不断增长 而娱乐,时尚俱乐部的市场前景将更加广阔。这 将展馆引入商业综合体,不仅能满足需求 为消费者,也为企业的长远发展注入新的动力和活力 商业综合体。
准备好开始了吗?开始自定义解决方案。
一站式解决方案示例 - 我们已完成的项目
我们已经完成了许多案例,无论是游乐园和时髦的游乐场,小空间还是 大空间,请随时将您的项目交给我们,我们将完成工作 完全自信
留言
对我们的数字运动器材产品有疑问或疑问?给我们留下一个 请在此处发送消息,我们的团队会及时回复您。
无论您是对定制订单、技术规格还是合作伙伴关系感兴趣 机会,我们在这里为您提供帮助。
* 请放心,您的隐私对我们很重要,我们将对您提供的所有信息进行保密处理。

















扫描二维码